
鞏義市仁源水處理材料廠
聯系人:孫經理
手機:15838253283(微信同號)
電話:0371-66557686
郵箱:1813885391@qq.com
地址:河南省鞏義市工業園區
高效殺菌滅藻劑廠家雷神山醫院中MBBR池的工作原理及應用特點
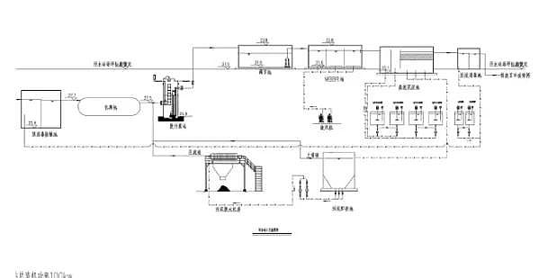
高效殺菌滅藻劑生產廠家雷神山醫院中MBBR池的工作原理及應用特點。雷神山醫院于1月26日正式開建,雷神山醫院污水處理采用生化處理,流程為:接觸消毒-化糞池-調節池-MBBR池-高效沉淀池-消毒-排至市政污水管網!
圖1:雷神山污水處理平面圖

圖2:雷神山污水處理剖面圖

今天咱們來了解下當下最火熱的雷神山醫院中MBBR池的工作原理及應用特點。
什么是MBBR?移動床生物膜工藝(Moving Bed Biofilm Reactor,MBBR)已在世界上很多國家建成了數千套污(廢)水處理設施,取得了良好的處理效果。MBBR工藝運用生物膜法的基本原理、同時結合活性污泥法的優點,以懸浮填料作為微生物生長的載體,通過懸浮填料在二級生化池中的充分流化,實現污水的高效處理。
一、工作原理
移動床生物膜工藝(Moving Bed Biofilm Reactor,MBBR)需要具有比重接近于水,有效比表面積大,適合微生物附著生長等特點的懸浮填料,目前國內已經有多家設備廠商開發成功,我國也頒布了相應的行業規范。懸浮填料在生化池中輕微攪拌即可懸浮起來,易于隨水自由運動,能夠很好的形成流化狀態。
在好氧條件下,曝氣充氧時產生的空氣泡上升浮力能夠推動填料和周圍的水體流動,當氣流穿過水流和填料空隙時又被填料阻滯,并被分割成小氣泡。
在這樣的過程中,填料被充分地攪拌并與水流混合,而空氣流又被充分地分割成細小的氣泡,增加了生物膜與氧氣的接觸和傳氧效率。在厭氧條件下,水流和填料在潛水攪拌器的作用下充分流化起來,達到生物膜和被處理的污染物充分接觸而降解的目的。
MBBR工藝的核心是實現懸浮載體填料的充分流化,以達到強化處理污染物的目的。在MBBR工藝的實際應用上,需要考慮的因素主要有生化池池型、懸浮填料投加量、曝氣系統、攔截篩網、推進器等。
在曝氣區內生物填料的流化是系統實現良好處理功能的關鍵。其主要依靠生化池的好氧區曝氣系統來實現。在好氧區中適當的曝氣系統能夠確保生物載體流化填料的流化效果,保證流化填料在水體中做上下、前后的流動,使填料與污水進行充分的混合、碰撞、接觸,有效完成污染物、水、氣三向的接觸、交換、吸附等過程。
填料比重一般選擇為0.94-0.97,在培菌期間,填料表面會慢慢附著大量的生物膜,附著量越大,比重逐漸增加,當填料上生物膜到一定厚度時,其比重大于1,填料從非曝氣區下沉到水池底部,曝氣區底部的沖擊力最強,能迅速沖洗掉填料上的殘余生物膜,脫膜后的填料比重也隨之降低到1以下,并在曝氣區上升。
根據掛膜前后的比重變化特點,填料可以隨水流在曝氣區和非曝氣區翻騰,從而交替完成了生物膜的生長和脫落過程,保證生物膜的數量穩定性和活性,使工藝運行較穩定。為了防止流化懸浮填料隨混合液進入下一個環節,在好氧區內適當位置設計采用篩網進行簡單攔截和分隔。篩網材質選用不銹鋼,型式與懸浮填料配套。
MBBR工藝特點主要有如下幾方面:
1.可強化脫氮除磷
采用活性污泥-懸浮填料復合工藝,可實現同一反應器內不同功能微生物的污泥齡分離。脫氮菌群(硝化菌群)一般為長泥齡細菌,需較長泥齡(15-25d);除磷菌群(聚磷菌)一般為短泥齡細菌,需較短泥齡(3-7d);泥齡過長,易導致微生物活性較差處理負荷降低、老化難以聚集降低沉降性能等,實際傳統脫氮除磷工藝在污泥齡上存在不可調和的矛盾。
復合工藝由于生物填料的投加,為硝化細菌的生長提供了載體,延長其污泥齡,提高脫氮效果;同時控制活性污泥體系為短泥齡,可增強除磷效果;泥-膜在曝氣及水流帶動下充分流化,促進生物膜更新,防止泥齡過長、污泥老化處理性能下降;冬季水溫較低、活性污泥系統不利于硝化菌群生長時,脫落生物膜對活性污泥起到持續接種作用,維持系統硝化性能不下降。
2. 抗沖擊負荷能力強,處理效果好
沖擊負荷主要表現為常規污染物水質沖擊、毒害污染物水質沖擊和水量沖擊,本質是單位時間內單位表面積微生物所承載的污染物量的變化對處理效果的影響。MBBR工藝填料區污泥齡長,增大微生物種群的豐度,有利于難降解有機物的處理。
低溫、高鹽、低基質等惡劣水質條件下,MBBR長泥齡及局部存在好氧、缺氧微環境,有利于其對于惡劣水質條件下,適應微生物的篩選與富集,利于馴化嗜冷菌、耐高鹽菌等的富集。
生物膜傳質比活性污泥慢,同樣生物降解產生的熱量與水體交換較慢,提高微生物的局部環境溫度,有利于細菌活性的維系,宏觀表現出MBBR對于低溫、高鹽、低基質等惡劣水質條件下,仍有較好的處理效果。
3.活性污泥不易膨脹
采用純MBBR系統,因為是純膜法,無污泥膨脹問題;采用活性污泥-懸浮填料復合工藝時,由于老化脫落的生物膜無機質比例較高,密度大易于沉降;且生物膜胞外聚合物比活性污泥更多,具有接觸絮凝效果,提高污泥聚集性能,提高污泥沉降性能。
剩余污泥產量較低,節約污泥處置費用,生物膜法的污泥產率僅為活性污泥工藝的一半,采用MBBR工藝可顯著降低剩余污泥產量,且污泥沉降性能的提升,易于降低污泥含水率,可節約污泥處置費用。
4. 不易堵塞、無需反沖洗
固定床工藝經常出現配水不均勻易產生死區、需定期反沖洗額外耗能及需配套設施、受紅蟲困擾降低硝化性能等問題。由于填料和水流在生物池的整個容積內都能得到混合,從根本上杜絕了生物池的堵塞可能,池容得到完全利用,無需反沖洗。
5. MBBR懸浮填料系統壽命長
填料耐磨耐用,攪拌器采用香蕉型的攪拌葉片,外形輪廓線條柔和,不損壞填料;整個攪拌和曝氣系統很容易維護管理,由于填料對氣泡的切割作用提高氧轉移效率,可使用穿孔曝氣提高曝氣系統安全性,延長檢修周期。
6. 適用于污水處理廠升級改造及立體擴容
MBBR工藝運轉靈活性高,可以采用各種池型,而不影響工藝的處理效果;同時可以很靈活的選擇不同比表面積填料及不同填料填充率。當實際運行進水水質或水量發生變化時,只通過提高填料填充率,即可保證原設計生物池容不變的情況下,達到體力擴容的目的,達到兼顧高效處理和遠期擴大處理規模而無需增大池容的要求。
二、MBBR工藝的應用特點
由于MBBR工藝獨有的泥膜共生系統,能夠很好的將活性污泥法和生物膜法有機結合起來,具有泥膜共生技術的顯著優點,將活性污泥法和生物膜法巧妙的結合在一起。
該系統的主要目的就是利用生物膜法抗低溫效果好的特性,增強有機物和氨氮在好氧段的去除,使他們的去除率超過單獨使用混合液的相應去除率。
MBBR懸浮填料中生產的生物膜內存在硝化菌,生物膜的剝落會給混合液接種,與在同樣的混合液懸浮固體平均細胞停留時間下的單獨活性污泥法相比,這種生物膜剝落和接種會顯著增加混合液中的硝化菌比例,因此生物膜載體的存在有助于增加單位池子體積的硝化率,增強二級處理工藝的硝化能力,從而進一步提高氨氮的去除效率。其主要應用特點有以下幾方面:
1. 適用于進水溫度極低的嚴寒地區
在我國內蒙和東北地區,冬季寒冷季節一般要持續半年。污水進水溫度持續低溫的情況下,對活性污泥的生長和降解污染物的能力會受到很大的影響。而MBBR工藝系統中具有普通活性污泥法不具備的生物膜系統,抵抗低溫的能力更為優秀,例如在我國的內蒙赤峰縣污水進水溫度最低時達到4℃,持續監測出水水質指標1個月后發現,污染物指標仍能夠滿足國家排放標準。
2. 適用于改擴建工程
由于MBBR工藝向生化池中投加懸浮填料后,生化池中懸浮填料的活性污泥菌群可以在不影響原有生化池菌群的前提下生長,這樣就可以在不動土建的前提下實現處理水量的增加,極大的減少了擴建工程的工作量,同時減少了建設用地。但MBBR工藝帶來極大便利的同時,也要注意設計上的問題。
在原有生化池中投加懸浮填料的比例要適中,過度的投加懸浮填料會導致填料的流化困難,根據實際工程經驗,懸浮填料最大投加比例為好氧區池容的60%,通常設計時均留有余量,投加比例不會超過50%,否則填料流化困難將帶來填料堆積、堵塞篩網、生化池溢流等嚴重問題。
3. 應合理設計篩網過流面積及曝氣系統
由于一般MBBR工藝懸浮填料尺寸為25mm的圓形多孔填料,懸浮填料在好氧區處于流動循環狀態,為避免懸浮填料隨水流進入下一個構筑物導致填料的流失,在MBBR工藝懸浮填料區需設置攔截篩網對懸浮填料進行攔截。
設計上需考慮在攔截填料的同時應保證篩網孔眼的過流量,如過流量不足或底部曝氣系統設計不合理,將導致懸浮填料在篩網處堆積,這將對過流量產生負面的影響,嚴重時懸浮填料會全部淤堵在篩網處,導致生化池內的水量無法進入下一單元,最終導致冒池現象的發生。
設計時應充分應用水力學原理,在篩網處設計單獨的穿孔曝氣管,使篩網處的懸浮填料處于流化狀態,從而發揮懸浮填料正常的處理功能。
更多高效殺菌滅藻劑生產廠家詳情點擊:http://www.quxianping.cn/